THE FISHERMANS HUT
EN:
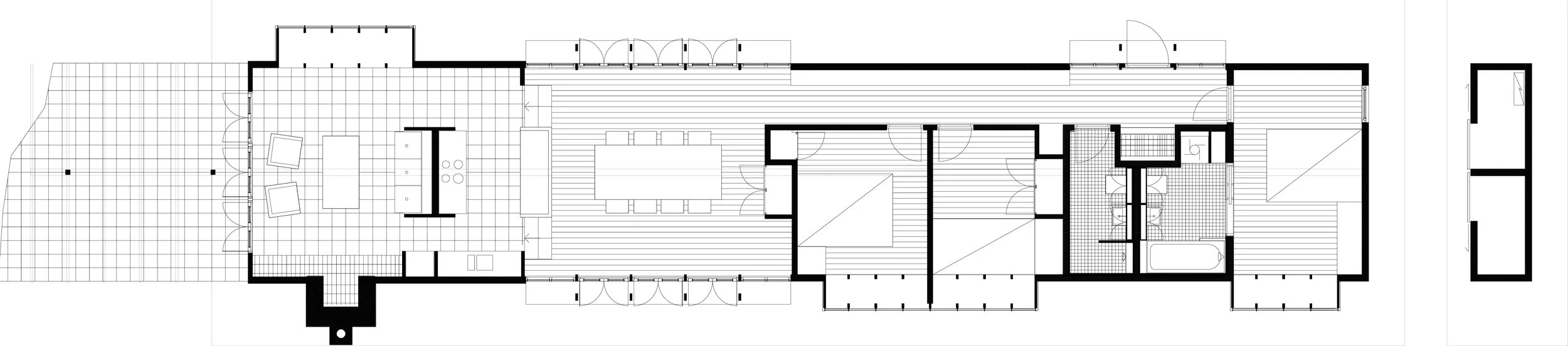
The summer cabin is situated in a very beautiful landscape by the water on the southern coast of Norway. The landscape is difficult to improve through a built structure. The solution attempts to strengthen the border between the different natural spaces at the site, reinforcing the understanding of the parts and the transition between them.
The cabin establishes a wall between the oak forest and the beach, giving a secluded garden character to the forest. The building creates a gate in the wall, to control the contact between the rooms through the most important room of the cabin. The rest of the building is kept relatively enclosed in contrast to the "gate". Windows are established through saddlebags, setbacks or by removing part of the panelling. The conceptual establishment of the wall is deliberately undermined by the section, attempting to lightness and movement.
The program is structured from east to west, from sleeping through dining to the living room following the path of the sun. The facades are covered with oiled oak panelling. Roof is zinc.
NO:
Sommerhytta ligger i et vakkert landskap ved vannet på Sørlandskysten. Det omkringliggende terrenget er så vakkert at det vanskelig lar seg forbedre gjennom bygningsmessige inngrep. Løsningen søker derfor å forsterke grensene mellom de ulike naturrommene på stedet, og tydeliggjøre både delene og overgangen mellom dem.
Hytta danner en vegg mellom eikeskogen og stranden, og gir skogen en skjermet hagekarakter. Bygningen skaper en port i denne veggen, som styrer forbindelsen mellom rommene gjennom hyttas viktigste rom. Resten av bygget er relativt lukket i kontrast til "porten".
Vinduer er plassert gjennom karnapper, tilbaketrukne partier eller ved å fjerne deler av kledningen. Den konseptuelle ideen om en vegg brytes bevisst gjennom byggets snitt, med mål om å skape letthet og bevegelse.
Planløsningen er organisert fra øst til vest – fra soverom, via spisestue til oppholdsrom – i takt med solens vandring. Fasaden er kledd med oljet eik, og taket er tekket med sink.
LOCATION: Withheld at the owners request
TYPE: Cabin
SIZE: 120m²
STATUS: Completed 2000
PHOTOGRAPHERS: Nils Petter Dale
