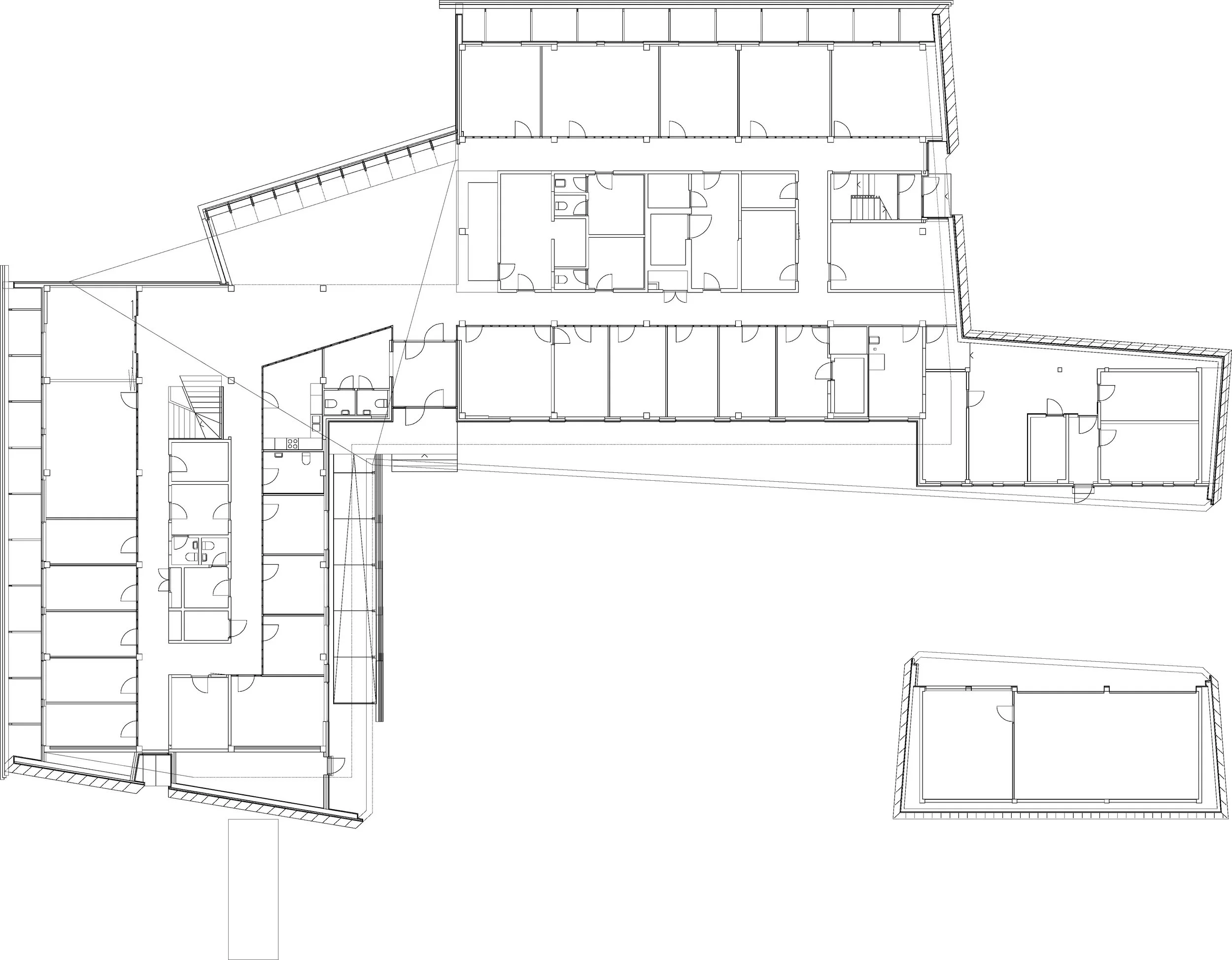
ADMINISTRATION BUILDING FOR THE GOVERNOR OF SVALBARD
The building is sited on Spitsbergen at 78 degrees north, an was finished in January 1998. The building is a multi-purpose building which contains housing, office areas, library, garage for snow scooters, and even a prison-cell, amongst other functions. We have tried, in short, to imply both industrial building traditions (mining), and aspects of the special climatic conditions of the area in the architectural ideas of the project.
The sink-covering of both walls and roof is equal because of the heavy wind conditions. The angle of the walls and overhanging roof protect entrance areas etc. from snow and wind.
The building is based on an existing concrete-construction left undamaged after the fire in which the old headquarter burnt down. The new geometry of the ”hull” enables a demanded increase of area without having to establish to many new fundamental pillars which are of great expense because of the ”perma-frost ” of the ground.
The open wooden screen in front of the office windows gives shelter and provides an artificially lighted view from the office-windows throughout the dark season; the artificial light is reflected by the snow and ice on the screens. The sharp angled planes of the sink-cladding mirror the very fast changing light and weather-conditions in the arctic region.
The windows are covered with three-layered glass filled with argon gas for maximum insulation because the temperature can vary from +20 during summer to -50 in wintertime.
Both physical and mental protection has been important issues in the strategy of the «Anorak» (Overcoat) of the building.
LOCATION: Longyearbyen, Spitsbergen (78º north)
TYPE: Public, Transformation
SIZE: 20.800m2
STATUS: Completed 1998
COLLABORATORS: Selmer/Skanska
CLIENT: Statsbygg / Directorate of Public Construction and property
